Skip links

🏡🔨 Rear Extension + Wall Removal = One Light-Filled Living Space 🌞🚪

We’ve submitted planning for a 3m rear extension with internal wall removal and bi-fold doors — a perfect layout for open-plan, modern family living.

Share

At Paddick Engineering, we’re thrilled to share a recent design now submitted for planning approval — a project that’s all about opening space, increasing light, and improving how our clients live in their homes. 🙌

✏️ Project Highlights:

3m Rear Extension – extending the property to the back to maximise floor space

🚧 Internal Wall Removal – knocking through between the kitchen and dining room for one seamless open-plan area

🚪 Two Large Sets of Bi-Fold Doors – creating a bright, modern connection between the indoor and outdoor spaces 🌿☀️

This kind of transformation not only enhances the flow of the home but also delivers modern living features that families truly value — natural light, indoor-outdoor living, and flexible use of space. 💡🏠

📝 Now that the design has been submitted for planning, we’re excited to take the next steps in bringing this vision to life!


 

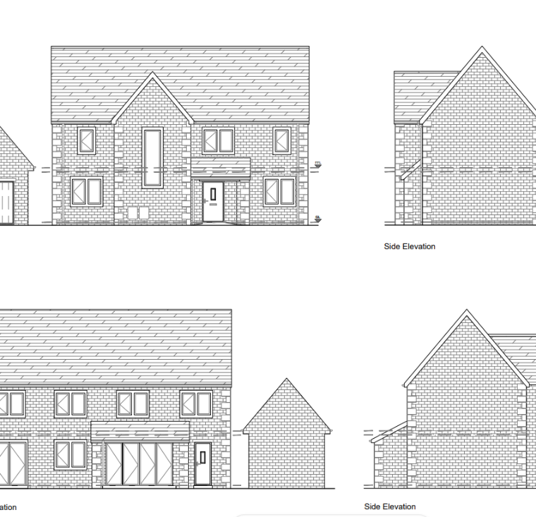
Proposed elevations
Proposed GF plan
Exisiting elevations
Exisiting GF plan
Paddick Engineering - Architectural, Civil, & Structural Designers - Stoke 3 Bed Semi CGI
Paddick Engineering - Architectural, Civil, & Structural Designers - Modern Living Room
Paddick Engineering - Architectural, Civil, & Structural Designers - Modern Residential Kitchen

💬 Thinking about an extension or open-plan reconfiguration?

📩 Contact our team today — we’d love to help design your perfect space.

    Explore
    Drag